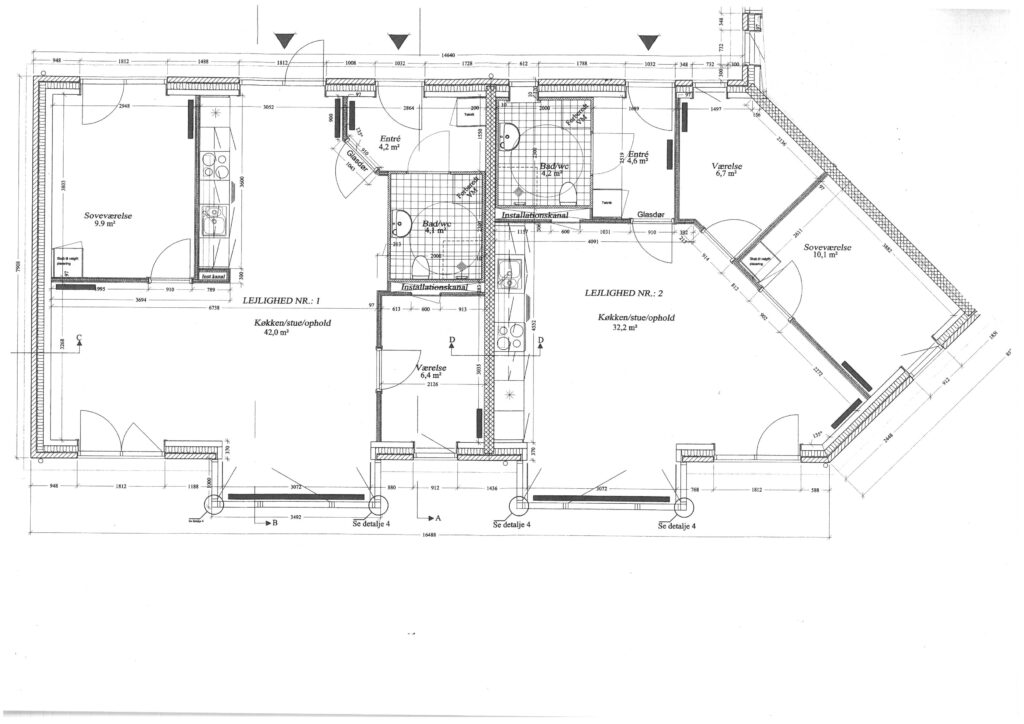
A/B Smedegården, Vig
Her kan du se plantegninger på vores lejligheder i foreningen samt nogle billeder indefra lejligheden.